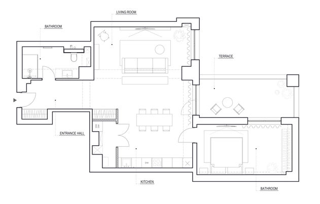
ENG The apartment is located in Chervonograd, Ukraine. The building of the apartment initially was supposed to have another function-a hospital. Years later, the building was replanned and became a residential multifamily building. That's why it has very high ceilings and a lot of visible reinforced concrete beams that we tried to expose and preserve, making them a part of the design.
Our client wanted a navy kitchen, as a reference to her profession, and some Ukrainian motives in the design. We used a lot of Ukrainian furniture here, as well as Ukrainian paintings, pottery, tiles and decor.
Also, our main goal was to make this interior design affordable. As a result, the client loved that project so much, that we didn't have any changes at all. It was accepted at first glance, and we think it is the best reward for us. Now, we are waiting for the realization to be completed.
UKR Квартира знаходиться в м. Червоноград, Україна. Будівля, де знаходиться квартира, спочатку мала виконувати інше призначення - лікарню. Згодом будинок перепланували і перетворили на житловий багатоквартирний комплекс. Завдяки цьому квартира має дуже високі стелі та багато помітних залізобетонних балок, які ми намагалися відкрити та зберегти, зробивши їх частиною дизайну.
Побажанням замовниці була акцентна синя кухня та українські мотиви в дизайні. Ми використали багато меблів українських виробників, українську кераміку, ілюстрації та декор.
Зараз ми чекаємо завершення реалізації.


Eco Park Apartment
Chervonograd
Ukraine
|
Under construction
Stage
2021
Year
85 sq. m
Project Area

Vasylyna Ilechko
Architect
Team























